Projects
From subway stations to swimming pools, from bridges to buildings, and in foundations, critical infrastructure, and many other applications around the world, explore our always expanding list of Project Profiles to learn how Xypex Crystalline Technology waterproofs, protects and repairs concrete.
Search in 202 projects
Sector
Product

River Drive Wastewater Treatment Plant
This project involves construction of additional structures at the existing River Drive WWTP including 2 digesters, a sludge tank and...

Sonic Sanitary Lift Station & Manholes – Arizona WWTP
The Arizona Lift Station project involved a large cast-in-place wet well and drop/ discharge precast manholes. Xypex Bio-San C500 was incorporated into...

Mitchell Water Treatment Plant
The city of Greensboro, NC’s Mitchell Water Treatment plant is over 60 years old. The plant needed significant repairs including...

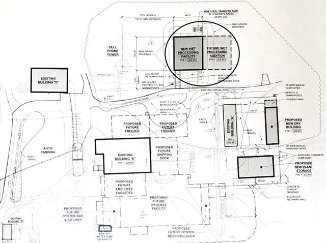
Taylor Shellfish Processing Facility
As a leader in sustainably farmed oysters, clams, mussels and geoduck, Taylor Shellfish Farms, based in Shelton, Washington, USA, continually...

650 S. Clark Street
This structure was built in 1902 and the below grade construction consisted of various sections of poorly consolidated concrete, brick,...

Cleveland Aquarium
*Please download Project Sheet for more images*
When local developer Jacobs Investments proposed to create the 70,000 ft2 (6,053 m2)Greater...

Riverside WTP
FCM 80 Walkway Surface Rehabilitation –30 Month Review
This project commenced late in 2015. The scope of work included repair...

City of Alameda Manhole Rehabilitation
This project concerned the rehabilitation of 17 existing manholes. Twelve of the manholes were brick and mortar construction that required...

South Lathrop Commons Center Sewage Pump Station
The South Lathrop Commons Centre SewagePump Station is a pre-cast structure made ofeight separate elements. The elements consistof a precast...

Fairchance Sewer Line Extension
For this sewer line extension, the manholes along the force main required protection from microbial induced corrosion. Liners or coatings...

Chatham Park WWTP
Chatham Park is 7,000 acre mixed-use development, including: commercial, retail, entertainment, hotel, restaurant and office spaces as well as 22,000...

Lafayette Sewer Renovations – Phase 12
Central Contra Costa Sanitary District decided to add antimicrobial protection to three new manholes being installed as part of the...

River Islands Sewage Pump Station
The River Island Sewage Pump Station faced two major challenges: as a sewage pump station the concrete required protection from...

City of Bend Sewer Structure Improvement
City of Bend Re-Evaluates ConventionalPractices in Sewer Structures
On paper, Bend, Oregon’s $3.8M North AreaSewer Improvements project seems like aroutine,...

Wonders of Wildlife National Museum and Aquarium
In September 2017, after ten years of planning and construction, the 350,000 sq. ft. Johnny Morris’ Wonders of Wildlife...

Gateway Arch Expansion
Soaring 630 feet above the mighty Mississippi River and its St Louis, Missouri, home, the gleaming stainless steel Gateway Arch...